Inicio
Proyectos
Trabajo
Equipo
Prensa
Contacto
Inglés
Español
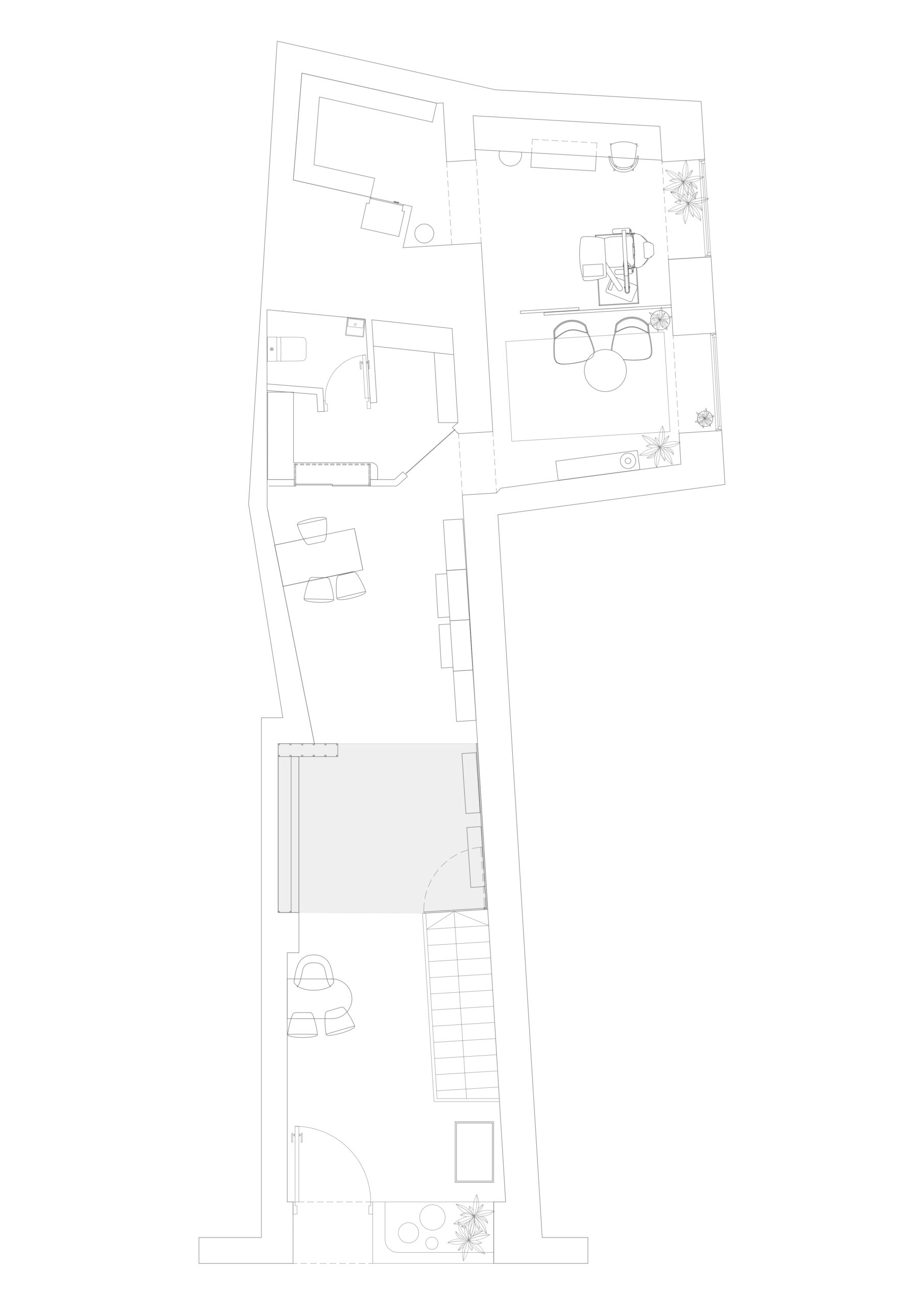
LATELIER
TYPE
RETAIL
LOCATION
MADRID
YEAR
2018
PHOTOGRAPHY
LUPE CLEMENTE
Prev
Next
Privacy Preference Center
Privacy Preferences
Este sitio está registrado en
wpml.org
como sitio de desarrollo. Cambia a una clave de sitio de producción en
remove this banner
.