HOME
PROJECTS
WORK
TEAM
PRESS
CONTACT
English
Spanish
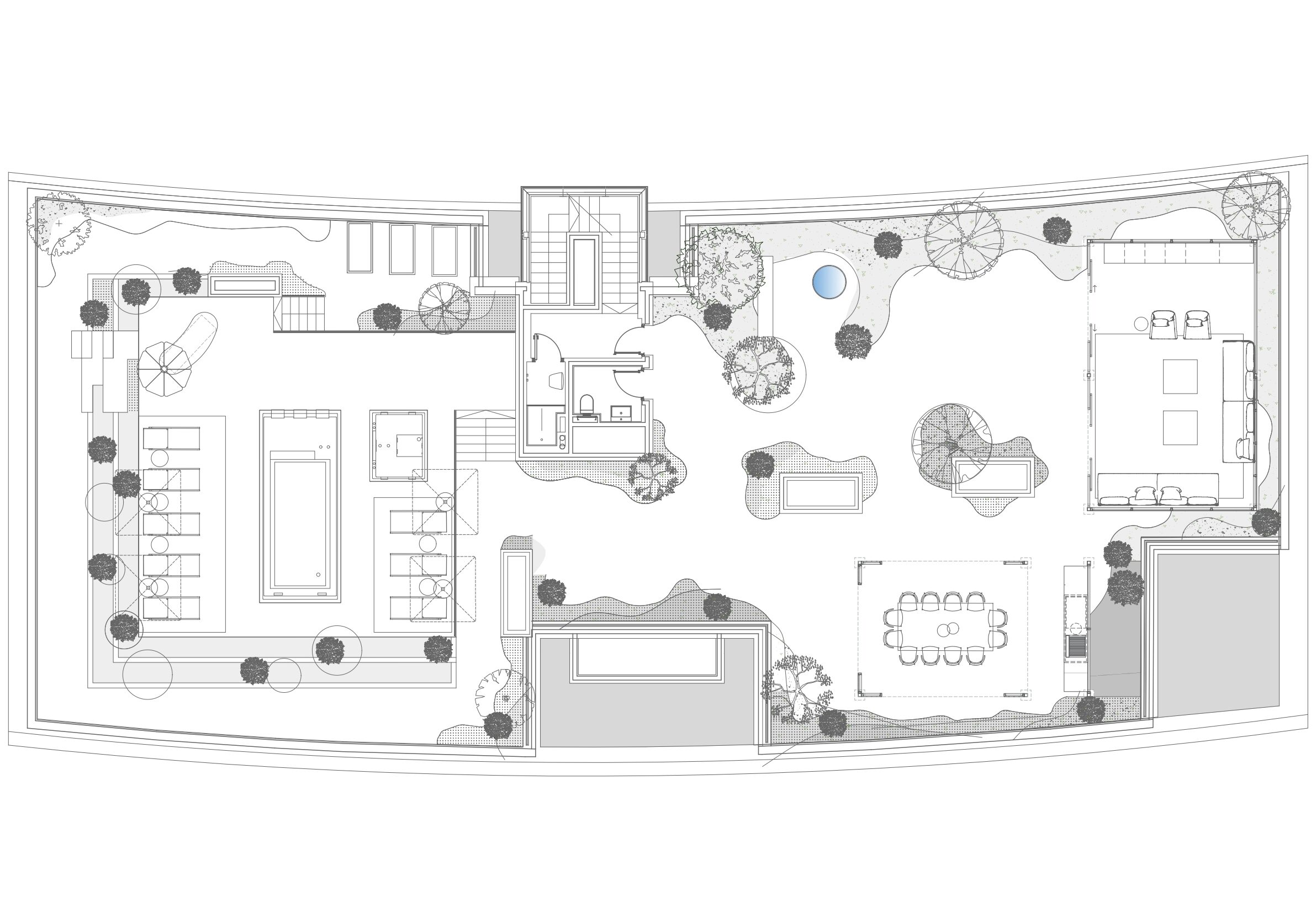
La Finca
TYPE
RESIDENTIAL
LOCATION
MADRID
YEAR
2025
PHOTOGRAPHY
LUPE CLEMENTE
Prev
Next
Privacy Preference Center
Privacy Preferences
This site is registered on
wpml.org
as a development site. Switch to a production site key to
remove this banner
.