HOME
PROJECTS
WORK
TEAM
PRESS
CONTACT
English
Spanish
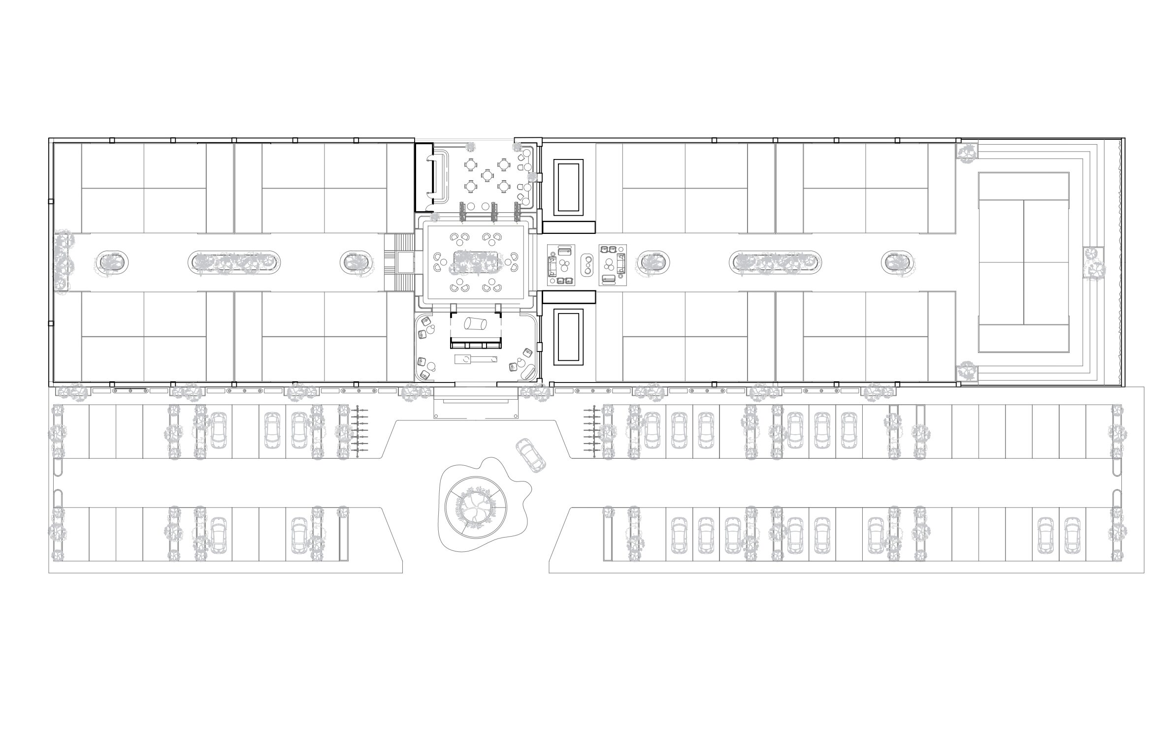
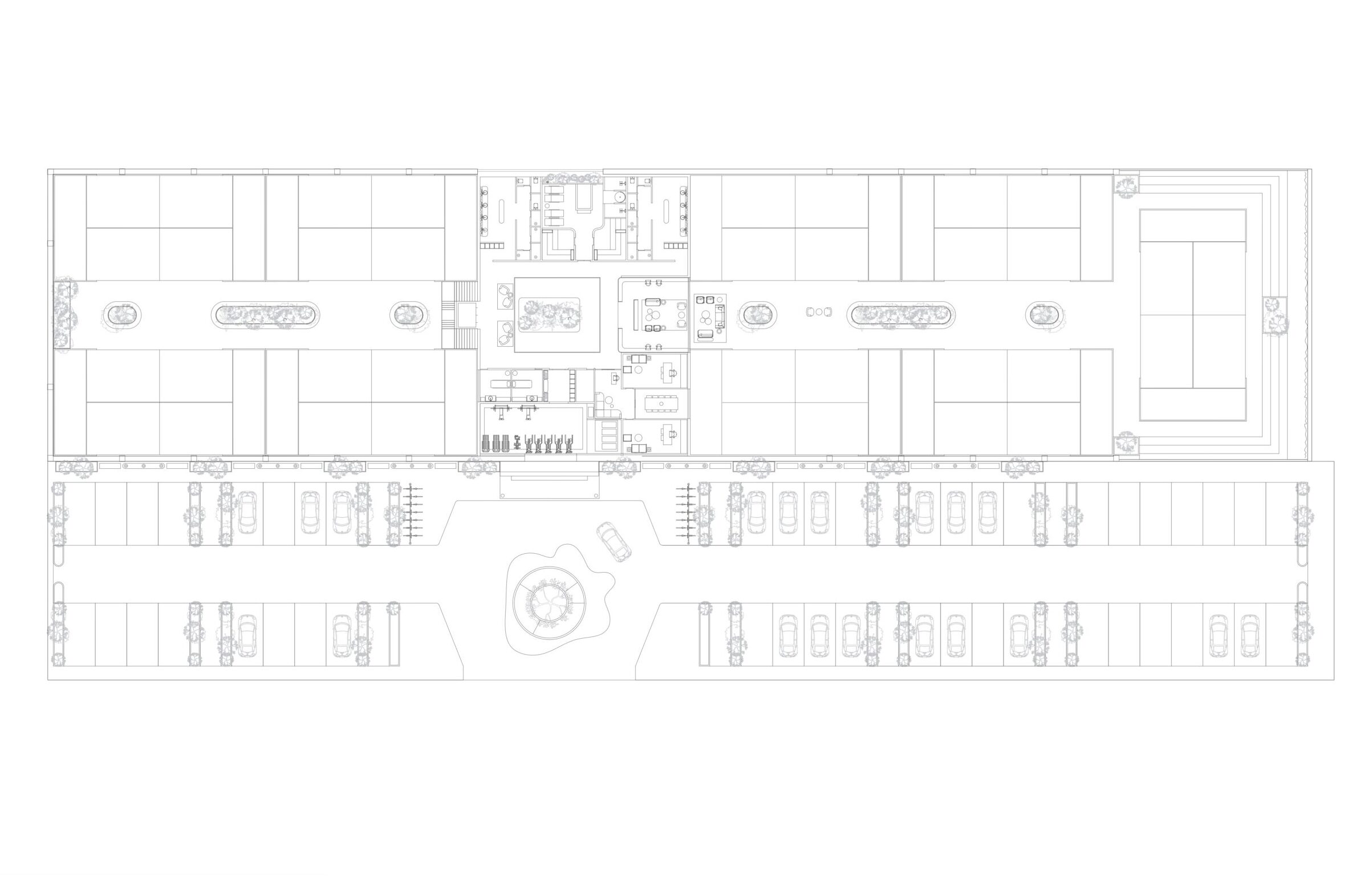
Padel Club
TYPE
HOSPITALITY
LOCATION
MIAMI
YEAR
2025
PHOTOGRAPHY
LUPE CLEMENTE
Prev
Next
Privacy Preference Center
Privacy Preferences
This site is registered on
wpml.org
as a development site. Switch to a production site key to
remove this banner
.